Home Design Construction Photographs Research Contact  
 

   
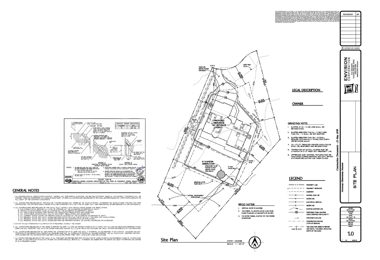
Site Plan
   

   
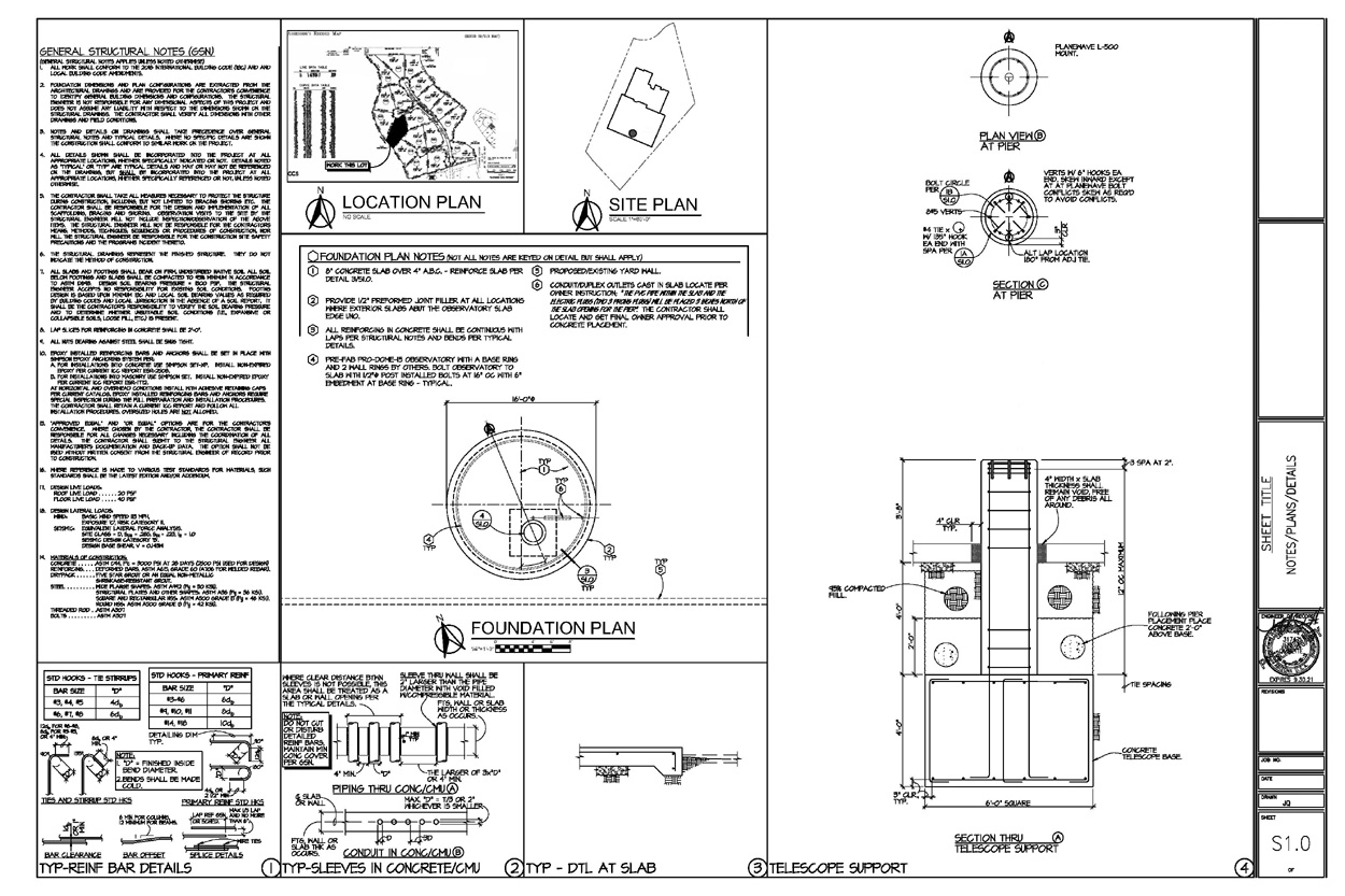
Foundation
   

   
14'6" Ash Dome and building